Full Title - Innovative Fire Engineering Strategies to Help Transform a Department Store into a Brand-New Workplace
By Karl Wallasch and Foivos Giorgallidis
In cities across the world, refurbishment and change-of-use developments are common. This is particularly true in London, thanks to — among other aspects — its history and building stock. Design teams can face unique constraints, restrictions and challenges throughout these projects, and these can have significant implications on the existing fire safety strategy. Compounding these even further is that current fire safety standard guidance can be difficult, if not impossible, to apply.
But there is a solution! Modern fire engineering techniques can help design teams and clients develop safe, robust fire safety strategies that meet both the regulator’s requirements and the unique constraints of the existing building. These techniques can also help provide better flexibility for the space, making it well-equipped to adapt to any future change. The final bonus: Designers and end-users can end up with a better and more-detailed understanding of fire safety.
Figure 1: Schematic of refurbished building. (Source: Squire and Partners)
The Project
The Department Store in Brixton, London, is a compelling example of using innovative fire engineering techniques in a change-of-use and extension project.
The Department Store was built in 1876 by James Smith and was the first steel-framed building in the UK. In 2015, architectural practice Squire and Partners decided to purchase the property and convert it into a modern office building. The building was to be restored, refurbished and extended to accommodate a new office, a members’ club on a new top-floor level, flexible exhibition/conference space, several individual retail units and an independent restaurant.
With four levels above ground (three existing and one new), a ground floor, and a single basement level, the building included compartment floors, sprinkler protection and two stairways for external means of escape. The new concept was based on adding a new floor level, removing sprinkler protection, removing compartment floors and introducing voids throughout all office levels to create connections from the basement level up to upper-floor levels.

Figure 2: The building in the 19th century. (Source: Squire and Partners website)
Figure 3: The building in the 19th century. (Source: Squire and Partners website)
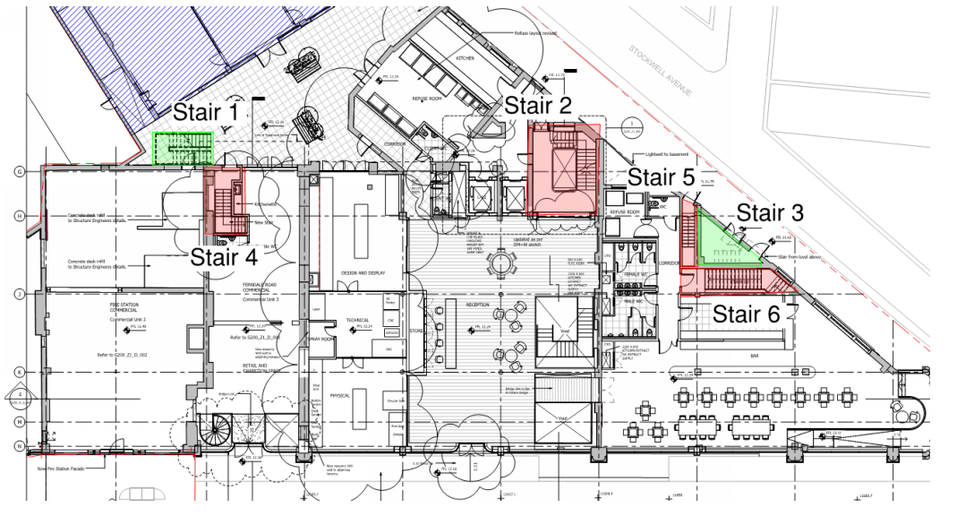
Figure 4: Ground floor general layout. (Source: Squire and Partners)
From the very start, it was clear that the scheme would provide significant challenges to the fire engineers, due to the building’s history and the proposed innovative architectural design. The project required modern fire engineering techniques that deviated from standard building regulations to achieve a robust and safe design without restraining the architectural design freedom and flexibility. Hoare Lea was appointed at an early stage to help the architectural design team overcome those challenges.
On change-of-use projects, available solutions can be limited and fire engineers need to work closely with the design team to achieve an optimal layout. Added to this was the issue of no documentation that outlined the fire safety strategy, principles or system for the existing building. The department store was designed more than a century ago and, during its lifetime, had undergone some building works and changes; meanwhile, fire safety standard regulations have been developed and changed.
To fully understand how the existing building would behave in the event of a fire, a site visit was arranged to review the active and passive fire safety measures.
Key Elements of the Project’s Fire Safety Strategy
Evacuation Strategy
In mixed-use schemes with multiple tenants, the type of evacuation strategy has to be considered. A simultaneous evacuation was proposed for the offices, bar on the fourth floor and adjacent restaurant on the ground floor, due to the shared means of escape routes in these areas. The remaining units were designed to adopt a ‘stay put’ strategy based on the high degree of compartmentation with the office space.
A key fire safety parameter was to define the maximum permitted occupancy of the building and its areas. In new buildings, it is common practice to size the stairs based on the proposed design occupancy; in existing buildings, the stairs with fixed widths and exit doors can define the maximum population of the building.
The permitted maximum population should be based on evenly distributed population. A detailed evacuation assessment was carried out to analyse various scenarios, such as evening, when events take place on the bar on fourth floor and/or at basement level. Figure 6 outlines the ground floor level and highlights escape stairs and exit provisions.
Following standard guidance, external stairs are generally recommended for occupants who are awake and familiar with the premises — but this would not be the case for members of the public visiting the building’s top-floor bar. Therefore, the bar was licensed for members only, although a member may bring in three non-member guests.
Figure 5: Bar on fourth floor. (Source: James Jones).
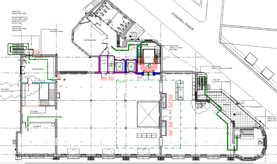
Figure 6: Vertical means of escape at ground floor. (Source: fire safety strategy)
Disability Refuge Points
Every stair core should be have a refuge point to assist the evacuation of anyone who is mobility-impaired. These must be located at each storey’s exit point, and have a minimum dimension of 900 mm by 1400 mm. Providing a protected lobby for each stair proved to be a design challenge. To solve it, rather than providing a protected lobby in front of each external stair core, the meeting room adjacent to the stair received fire-resistant features, so they could function as refuge points.
Figure 7: Typical floor showing compartmentation. (Source: S+P)
External Fire Spread
The proposed work on the building involved removing the existing sprinkler system and creating open voids to link various levels. These worsen the situation in terms of external fire spread. A detailed external fire spread assessment was carried out to assess whether a compartment floor or fire-resistant glazing were required for the new design. The best option was for the new floor to be designed as a compartment floor, as shown in Figure 8.
Figure 8: Typical elevation. (Source: S+P Stage 4 Design)
A Step beyond the Fire Strategy
Typically, a specialist fire risk assessor undertakes the fire risk assessment for a premises. In this case, the client decided to appoint the Hoare Lea fire engineers who developed the strategy to undertake the fire risk assessment as well. The rationale was that the fire engineers (who had been involved from the early stages of the project) would be more suited to the task, since they were fully aware of the fire-engineered fire safety strategy and would avoid any misinterpretation of fire safety definitions. Due to the complexity of the means of escape arrangements, and the fact that there are multiple users onsite, the main finding of the risk assessment was that a robust management plan was needed.
Some elements of the fire strategy depend on the successful implementation of the management plan. The plan includes regular fire drills, trained fire marshals and informing new starters about the escape routes.
Figure 9: Internal of the office space. (Source: James Jones)
The Department Store project shows how fire engineering techniques are integral to ensuring that change-of-use projects meet their goals. In this case, although the building was built over a century ago and its use has changed during its lifetime, the new proposed use was permitted — thanks to the innovative use of fire engineering principles in lieu of compliance with standard guidance.
Ultimately, the architectural vision was realised, creating a unique, modern and flexible office environment that honours the historic importance of the site.
Figure 10: Ground floor internal layout. (Source: James Jones)
Karl Wallasch, Dipl.-Ing., CEng, and Foivos Giorgallidis, BSc, MSc, AIFireE are with Hoare Lee